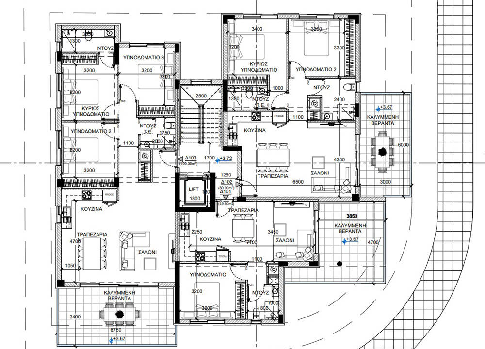
For Sale, Four-Bedroom Modern Detached House in Geri
Stunning, spacious and modern four-bedroom detached house, available for sale…
€399,000
2042 Nicosia, Cyprus
+357 99 646 177
Reg. 771 | Lie. 377/E
Sold
€145,000








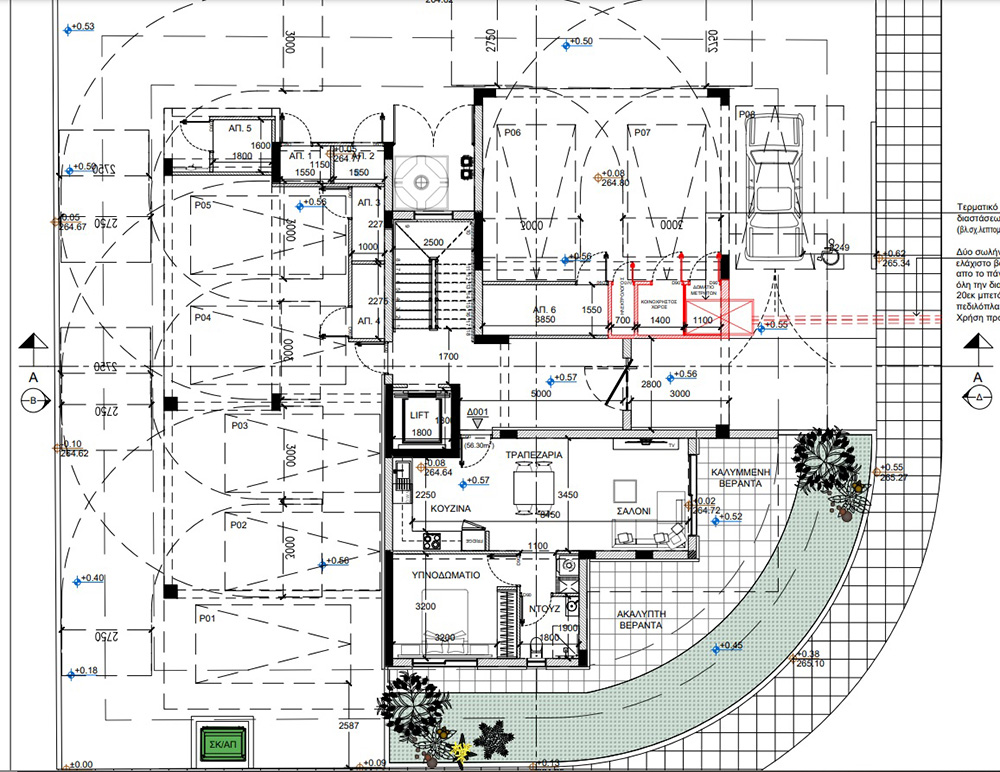
One-bedroom apartment, located in the residential and new built area of Deftera, is available for sale today. This apartment offers access to all the amenities nearby, including shops, banks, schools and supermarkets. This flat is situated on the ground floor of a 2-storey building with 6 apartments in total. It measures 56m2 of inside areas plus 16m2 of a covered veranda, 16m2 of an uncovered veranda and 40m2 of a yard.
The internal accommodation comprises of a living room and a dining area, an open plan kitchen, one bedroom and a bathroom.
Features: air conditioning infrastructure, a covered parking place, a storage room, double glazed windows, solar system, CCTV system, building thermal insulation system, etc.
Qualifies for the Rural Regeneration Housing Scheme (up to €20,000-under conditions).
Stunning, spacious and modern four-bedroom detached house, available for sale…
€399,000
A two-bedroom apartment, located in the residential area of Tseri,…
€127,000
Large Industrial Land is available for sale in Kaimakli area.…
€1,854,000
Property Pro Real Estate Agency is happy to present to…
€138,000